Marie J. McCormack Auctioneering in conjunction with BV Real Estate are delighted to bring to the market a rare opportunity to acquire a prime development site with full planning permission for 8 units.
(Folio No: LD14073F)
This unique combination of residential and commercial development makes it an attractive investment for developers and investors alike.
Residential Development:
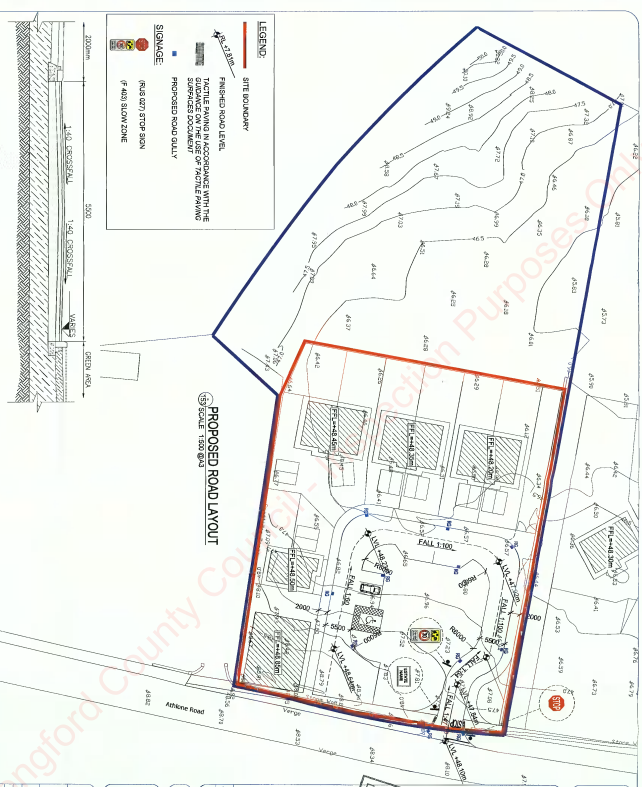
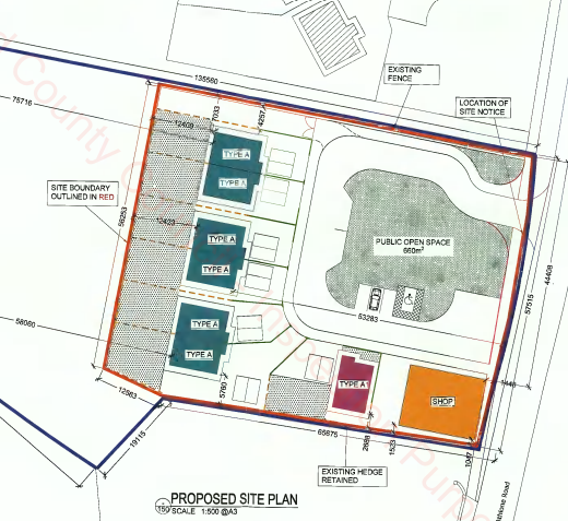
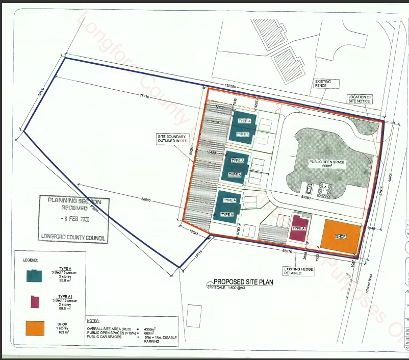
The approved plans include six semi-detached houses and one detached house, catering to the increasing demand for quality housing in the area. Each residence is designed for modern living, providing comfort and convenience for future residents. This residential aspect promises to enhance the community, offering a variety of housing options suitable for families, young professionals, and retirees.
Commercial Opportunity:
In addition to the residential units, the inclusion of a commercial property measuring 1,750 sq. ft. presents a unique opportunity to create a vibrant hub within Mosstown. This space can accommodate various businesses, such as retail shops, offices, or service-oriented establishments, contributing to local economic growth while providing essential services to residents.
Location and Accessibility:
The land is strategically located in Mosstown, benefiting from excellent transport links and proximity to local amenities. This prime location enhances the potential for high occupancy rates for the residential units and increased foot traffic for the commercial unit.
Call our office on 090 6432129 to arrange a viewing.
Viewing strictly by appointment.
Notice: All information provided is to the best of our knowledge. The utmost care and attention has been placed on providing factual and correct information. In certain cases some information may have been provided by the Vendor to us. We do not hold any responsibility for mistakes, errors or any inaccuracies in our advertising and give each and every viewer the right to get a professional opinion on any concern they may have. All measurements are approximate and photographs provided for guidance only.
Resources/Links:
Marie J. McCormack MIPAV (CV) TRV MMCEPI
Office Hours:
Mon – Fri 10am – 5pm
Out of hours & weekends by appointment
Webdesign by studio93
Necessary cookies are absolutely essential for the website to function properly. These cookies ensure basic functionalities and security features of the website, anonymously.
| Cookie | Duration | Description |
|---|---|---|
| cookielawinfo-checkbox-analytics | 11 months | This cookie is set by GDPR Cookie Consent plugin. The cookie is used to store the user consent for the cookies in the category "Analytics". |
| cookielawinfo-checkbox-functional | 11 months | The cookie is set by GDPR cookie consent to record the user consent for the cookies in the category "Functional". |
| cookielawinfo-checkbox-necessary | 11 months | This cookie is set by GDPR Cookie Consent plugin. The cookies is used to store the user consent for the cookies in the category "Necessary". |
| cookielawinfo-checkbox-others | 11 months | This cookie is set by GDPR Cookie Consent plugin. The cookie is used to store the user consent for the cookies in the category "Other. |
| cookielawinfo-checkbox-performance | 11 months | This cookie is set by GDPR Cookie Consent plugin. The cookie is used to store the user consent for the cookies in the category "Performance". |
| viewed_cookie_policy | 11 months | The cookie is set by the GDPR Cookie Consent plugin and is used to store whether or not user has consented to the use of cookies. It does not store any personal data. |
Functional cookies help to perform certain functionalities like sharing the content of the website on social media platforms, collect feedbacks, and other third-party features.
Performance cookies are used to understand and analyze the key performance indexes of the website which helps in delivering a better user experience for the visitors.
Analytical cookies are used to understand how visitors interact with the website. These cookies help provide information on metrics the number of visitors, bounce rate, traffic source, etc.
Advertisement cookies are used to provide visitors with relevant ads and marketing campaigns. These cookies track visitors across websites and collect information to provide customized ads.
Other uncategorized cookies are those that are being analyzed and have not been classified into a category as yet.